Dom Kukinka gm. Ustronie Morskie
Kukinka gm. Ustronie Morskie Pokaż na mapie ›
Odświeżone: Czwartek, 04 Grudzień, 2025 11:23
645 000 zł
7963 zł/m2
Szczegóły ogłoszenia
- Kategoria: Domy / Sprzedaż
- Powierzchnia:81 m2
- Liczba pokoi:4 pokoje
- Pow. działki:385 m2
- Rynek:Pierwotny
- Sprzedaż:Pośrednik
- Cena: 645 000 zł / 7963 zł/m2
Opis oferty
Ustronie Morskie/Kukinka tu powstało nowoczesne osiedle KU SŁOŃCU gdzie mamy do zaoferowania dla Państwa energooszczędne i ekonomiczne domy.Niska i lekka architektura tworzy kameralną przestrzeń ze starannie zaprojektowanym rekreacyjnym otoczeniem do wspólnego użytkowania.
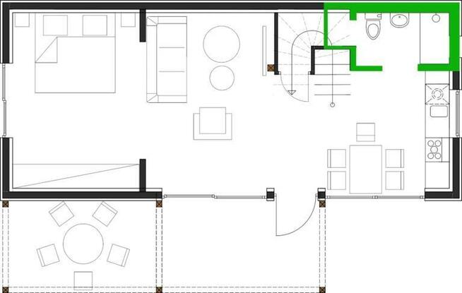
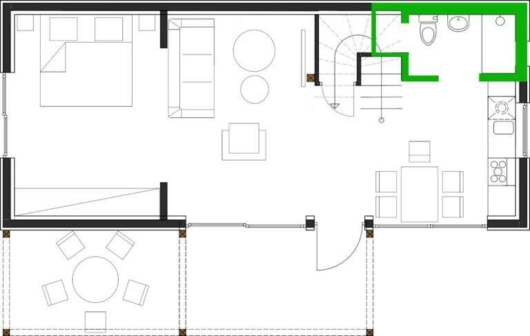
Przedmiotem sprzedaży jest dom wolno stojący typu Klif nr 2 T - oddawany w standardzie deweloperskim.
Dom piętrowy o powierzchni użytkowej 81 m2 wraz z tarasem o powierzchni łącznej 47 m2, z którego którego 18 m2 zostało przeszklone i zabudowane drewnem (przeszklona weranda).
Na parterze znajduje się kuchnia połączona z przestronnym salonem (istnieje możliwość wydzielenia sypialni na parterze), spiżarnia, łazienka.
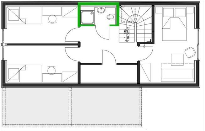
Na poddaszu trzy sypialnie, łazienka, pomieszczenie techniczne.
Dom znajduje się na ogrodzonej działce o pow. 385 m2
Ustronie Morskie/Kukinka tu powstało nowoczesne osiedle KU SŁOŃCU gdzie mamy do zaoferowania dla Państwa energooszczędne i ekonomiczne domy.
Niska i lekka architektura tworzy kameralną przestrzeń ze starannie zaprojektowanym rekreacyjnym otoczeniem do wspólnego użytkowania.
Do zaoferowania mamy trzy typy domów wraz z pełną infrastrukturą osiedla oraz udogodnienia typu:
- miejsca parkingowe,
- siłownia zewnętrzna,
- plac zabaw,
- zadaszone miejsce do grillowania w altanie przy stawie.
- drogi dojazdowe.
- oświetlenie terenu.
- ogrodzony teren z bramą wjazdową.
Domy wybudowane są w energooszczędnej technologii z prefabrykowanych i izolowanych materiałów z naturalnych włókien drzewnych.
Budynki wyposażone są w instalacje:
- grzewczą w postaci grzejników promiennikowych elektrycznych z osobną regulacją w każdym pomieszczeniu oraz grzejników drabinkowych i mat grzewczych w łazienkach
- wodną,
- kanalizacji sanitarnej;
- elektryczną;
- odgromową;
- fotowoltaiczną;
- rekuperacji;
- światłowód.
Domy z drewna w zakresie wykorzystania materiałów izolacyjnych opierają się o system budowlany marki STEICO, zapewniając im trwałość, wytrzymałość, energooszczędność, ochronę przed wilgocią oraz hałasem.
Dzięki wykorzystaniu odpowiednich materiałów i stosowaniu najlepszych praktyk w zakresie montażu prefabrykatów wybudowane domy cechuje niskie zapotrzebowanie na ciepło, zapewniając szczelność powietrzną budynku i pozwalając udzielić 30-letniej gwarancji na konstrukcję domu.
Dodatkowo każdy prefabrykowany dom został posadowiony na solidnej i ocieplonej płycie fundamentowej, co przy jednoczesnym dobraniu wyłącznie odpowiedniej klasy stolarki i elementów wykończeniowych sprawia, że łączne parametry każdego oferowanego domu przewyższają standardy WT 2021 obowiązujące w Polsce od 2021 roku.
Więcej informacji o technologii STEICO www.steico.com/pl/
Oferujemy trzy typy domów: KLIF o pow. 81 m2 KORAL o pow. 94 m2 i JANTAR o pow. 111 m2
Przedmiotem sprzedaży tej oferty jest dom KLIF
KLIF (5 sztuk)
Powierzchnia użytkowa 81 m2
Taras o powierzchni 47 m2 (w tym weranda)
Fotowoltaika 6,38 kW
Parter:
kuchnia połączona z przestronnym salonem ( istnieje możliwość wydzielenia sypialni na parterze), spiżarnia ,łazienka.
Poddasze:
trzy sypialnie, łazienka, pomieszczenie techniczne.
Ogrodzona działka o powierzchni 385 m2
Oszklona weranda o pow. 18 m2
2 miejsca postojowe przy domu.
Każdy z domów może być oddany w trzech stanach wykończenia:
- stan Deweloperski,
- stan wykończeniowy Standard
- stan wykończeniowy Premium.
Stan Deweloperski:
Drzwi zewnętrzne: we współpracy z firmą Drutex z serii IGLO ENERGY w kolorze dąb Winchester.
Okna: PCV w kolorze Winchester oraz parapety wewnętrzne z konglomeratu firmy Drutex.
Posadzki: cementowa z ociepleniem.
Ściany wewnętrzne: gładzie gipsowe zagruntowane pod farbę.
Ogrzewanie elektryczne: promienniki THERMOPLUS, łazienki grzejnik drabinkowy.
Instalacja elektryczna: instalacja oświetleniowa zakończona plafonami w korytarzu i łazienkach, wiatrołapie i garderobach, natomiast kostką w pokojach i salonie, instalacja elektryczna zakończona gniazdami i włącznikami osprzęt firmy SIMON.
Stan wykończeniowy STANDARD:
Drzwi zewnętrzne: we współpracy z firmą Drutex z serii IGLO ENERGY w kolorze dąb Winchester.
Okna: PCV w kolorze Winchester oraz parapety wewnętrzne z konglomeratu firmy Drutex, Rolety zewnętrzne ( w domu Jantar)
Podłogi: w pokojach panele podłogowe laminowane Kronostep w kolorze Dąb Lakeland we współpracy z firmą Komfort, w pozostałych pomieszczeniach płytki ceramiczne firmy Tubądzin.
Ściany wewnętrzne: gładzie gipsowe malowane farbą emulsyjną w kolorze białym, w łazienkach płytki ceramiczne ścienne,
Stolarka drzwiowa wewnętrzna: drzwi pokojowe oraz łazienkowe DRE z kolekcji Verso w kolorze białym we współpracy z firmą Komfort.
Oświetlenie: plafony w łazienkach oraz korytarzu, wiatrołapie, garderobach ( w domu typu Jantar)
Ogrzewanie elektryczne: promienniki THERMOPLUS, łazienki grzejnik drabinkowy oraz maty grzewcze.
Instalacja elektryczna: zakończona gniazdami i włącznikami osprzęt firmy SIMON.
Stan wykończeniowy PREMIUM:
Drzwi zewnętrzne: we współpracy z firmą Drutex z serii IGLO ENERGY w kolorze dąb Winchester.
Okna: PCV w kolorze Winchester oraz parapety wewnętrzne z konglomeratu firmy Drutex, Rolety zewnętrzne
Podłogi: w pokojach panele podłogowe laminowane Kronostep w kolorze Dąb Lakeland we współpracy z firmą Komfort, w pozostałych pomieszczeniach płytki ceramiczne firmy Tubądzin.
Ściany wewnętrzne: gładzie gipsowe malowane farbą emulsyjną w kolorze białym, w łazienkach płytki ceramiczne ścienne,
Stolarka drzwiowa wewnętrzna: drzwi pokojowe oraz łazienkowe DRE z kolekcji Verso w kolorze białym we współpracy z firmą Komfort.
Oświetlenie: plafony w łazienkach oraz korytarzu, wiatrołapie, garderobach
Ogrzewanie elektryczne: promienniki THERMOPLUS, łazienki grzejnik drabinkowy oraz maty grzewcze.
Instalacja elektryczna: zakończona gniazdami i włącznikami osprzęt firmy SIMON.
Łazienka: kabina prysznicowa wraz z baterią, kompakt WC, szafka łazienkowa z umywalką na blatowa oraz baterią, lustro z halogenem.
Łazienka gościnna: kabina prysznicowa wraz z baterią, kompakt WC, szafka łazienkowa z umywalką na blatowa oraz baterią, lustro z halogenem.
Aneks kuchenny: meble w zabudowie , wyspa kuchenna z hokerami oraz sprzęt AGD, tj. płyta elektryczna z okapem kuchennym, lodówka, zmywarka, piekarnik, z funkcją mikrofali w domu Klif, czajnik elektryczny, zlewozmywak z baterią, fartuch z płyty ozdobnej, na oknie roleta rzymska.
3 sypialnie: szafa zabudowana z lustrami
Wiatrołap: garderoba z lustrami w domu typu Jantar , szafa zabudowana z lustrami w domu typu Koral
Sypialnia małżeńska: garderoba z lustrami w domu typu Jantar
Osiedle będzie zarządzane przez Zarządcę oraz dewelopera przez minimum 5 lat.
Altany przy domach mogą zostać zabudowane jako altany narzędziowe. Istnieje możliwość zabudowy Patii przy domach typu Jantar poprzez przeszklenie.
Przy wjeździe znajduje się pomieszczenie gospodarcze dla domów, które nie posiadają altan.
Na terenie osiedla znajduje się instalacja światłowodowa. Istnieje możliwość zamontowania ładowarki do samochodów elektrycznych.
Ponadto możemy Państwu pomóc przy wykończeniu domów oferując firmy, które realizowały to osiedle gwarantując odpowiednią jakość, terminowość i cenę.
Przewidywane opłaty czynszowe wynoszą:
- dom typu Klif ______,- zł
Składniki czynszu:
Utrzymanie czystości części wspólnych, Konserwacja terenów zielonych, Wynagrodzenie Zarządcy, Fundusz remontowy, Woda, Ścieki, Wywóz nieczystości stałych.
Podstawą wysokości opłat czynszowych jest zużycie wody, z tego względu każdy dom posiada dwa wodomierze jeden na dom drugi na ogród.
Zużycie wody do podlewania ogrodu nie jest wliczane do naliczenia kosztów za ścieki i śmieci.
Po utworzeniu Wspólnoty istnieje możliwość założenia monitoringu.
Osiedle jest chronione całodobowo oraz ubezpieczone.
Osoby, które będą kupowały dom za gotówkę nie będą podlegać pod Ustawę deweloperską tzn. będzie sporządzona bezpośrednia umowa notarialna sprzedaży.
Osoby, które będą korzystały z kredytu bankowego na zakup domu będą podlegały ustawie deweloperskiej sporządzana będzie umowa deweloperska - przedwstępna, następnie umowa notarialna.
Osiedle znajduje się w odległości 2,5 km od Morza Bałtyckiego, w bezpośrednim sąsiedztwie Ustronia Morskiego ( 0,5 km) i Kołobrzegu (12 km)
W pobliżu osiedla znajdują się:
- 1 km do drogi krajowej nr 11
- 2 km do drogi ekspresowej S6/E28
- 900 m do stacji PKP Ustronie Morskie skąd przyjedziesz pociągiem INTERCITY z Warszawy, Krakowa, Łodzi lub Kołobrzegu, a także pociągiem POLREGIO ze Szczecina lub Koszalina.
- Pociągiem Pendolino wprost z Warszawy do Kołobrzegu i dalej pociągiem POLREGIO do Ustronia Morskiego.
- Aquapark z krytym i zewnętrznym basenem w rodzinnym - centrum sportowym z parkiem wodnym, kręgielnia i siłownia ok. 3,5 km
- Pole golfowe 7 km w Rusowie.
- Bezpośrednia ścieżka rowerowa na plaże
- Stadnina koni.
Naszym priorytetem jest zagwarantowanie przyszłym mieszkańcom komfortu oraz poczucia spełnienia marzeń o swoim miejscu do zamieszkania.
Poczucie to gwarantują energooszczędne domy z działkami, które posiadają fotowoltaikę i rekuperację w ogrodzonym, przestronnym i spokojnym miejscu jakim jest nasze osiedle.
Dziękujemy za kontakt oraz zainteresowanie tą inwestycją. Jesteśmy do Państwa dyspozycji w razie jakichkolwiek pytań ale również serdecznie zapraszamy do odwiedzin i spaceru po naszym wykończonym już osiedlu Ku Słońcu.
AKTUALNA OFERTA SPRZEDAŻY DOMÓW: stan na dzień 04.02.2025 r.
Jantar 2A pow. domu 113 m2 pow. działki 889 m2 stan Deweloperski vat 8% cena netto 810.185,- zł cena brutto 875.000,- zł cena 1 m2 brutto 7.743,- zł
Jantar 2B pow. domu 113 m2 pow. działki 805 m2 stan Deweloperski vat 8% cena netto 810.185,- zł cena brutto 875.000,- zł cena 1 m2 brutto 7.743,- zł
Jantar 2C pow. domu 113 m2 pow. działki 791 m2 wykończenie typu Standard vat 8% cena netto 856.481,- zł cena brutto 925.000,- zł cena 1 m2 brutto 8.186,- zł
Jantar 2D pow. domu 113 m2 pow. działki 863 m2 stan Deweloperski vat 8% cena netto 810.185,- zł cena brutto 875.000,- zł cena 1 m2 brutto 7.743,- zł
Jantar 2E pow. domu 113 m2 pow. działki 1345 m2 wykończenie typu Standard vat 8% cena netto 856.481,- zł cena brutto 925.000,- zł cena 1 m2 brutto 8.186,- zł
Koral 2J pow. domu 94 m2 pow. działki 846, m2 stan wykończenia typu Standard vat 8% cena netto 782.407,- zł cena brutto 845.000,- zł cena 1 m2 brutto 8.989,- zł
Koral 2K pow. domu 94 m2 pow. działki 893 m2 stan wykończenia typu Standard vat 8% cena netto 782.407,- zł cena brutto 845.000,- zł cena 1 m2 brutto 8.989,- zł
Koral 2L pow. domu 94 m2 pow. działki 1023 m2 stan wykończenia typu Premium vat 8% cena netto 828.704,- zł cena brutto 895.000,- zł cena 1 m2 brutto 9.521,- zł
Koral 2M pow. domu 94 m2 pow. działki 959 m2 stan Deweloperski vat 8% cena netto 736.111,- zł cena brutto 795.000,- zł cena 1 m2 brutto 8.457,- zł
Klif 2P 81 386 Standard 8% 643 - pokaż numer telefonu - 000 8 580
Klif 2R 81 382 Standard 8% 643 - pokaż numer telefonu - 000 8 580
Klif 2S 81 381 Deweloperski 8% 597 - pokaż numer telefonu - 000 7 963
Klif 2T 81 385 Deweloperski 8% 597 - pokaż numer telefonu - 000 7 963
Jantar 2U 113 820 Standard 8% 902 - pokaż numer telefonu - 000 8 628
Jantar 2W 113 846 Standard 8% 902 - pokaż numer telefonu - 000 8 628
Jantar 2X 113 732 Standard 8% 902 - pokaż numer telefonu - 000 8 628
Jantar 2Y 113 742 Deweloperski 8% 856 - pokaż numer telefonu - 000 8 186
Przedstawione informacje nie stanowią oferty w rozumieniu przepisów Kodeksu Cywilnego. Dane dotyczące nieruchomości oparte są na informacjach uzyskanych od właściciela nieruchomości i mogą różnic się od stanu faktycznego. Podane ceny i czynsze mogą ulec zmianie. Zalecamy osobiste zapoznanie się ze stanem nieruchomości. Zapraszamy !
Oferta wysłana z programu IMO dla biur nieruchomości
Numer oferty: 24118
Sprawdź zainteresowanie tym ogłoszeniem
Wyświetlenia
Data dodania
Ostatnio widziany
Obserwujących
Wysłane zapytania
Odsłony telefonu
Powiadom o podobnych ogłoszeniach
Lokalizacja: Kukinka
Kategoria: Nieruchomości » Domy » Sprzedaż
Cena: od 548500 zł do 742000 zł Powierzchnia : od 69 m2 do 93 m2
Chcę otrzymywać powiadomienia o nowych ofertach
- Wypromuj ogłoszenie
- Zgłoś naruszenie
- Drukuj ulotkę
- Edytuj/usuń ogłoszenie
- Udostępnij ogłoszenie
- Dodaj na Facebook






























